Bán căn hộ dịch vụ Tân Bình 235m2 x 35 phòng tại Trần Thái Tông – Dòng tiền 2,5 tỷ ~ 8%/năm
Trần Thái Tông - P.15 - Tân Bình
Đặc điểm
| Diện tích | 235m2 |
| Nội thất | Nội Thất Cao Cấp |
| Giá | 35000000000 |
| Địa chỉ | Trần Thái Tông - P.15 - Tân Bình |
| Mã tin đăng | #00036 |
Thông tin mô tả
Bán Căn Hộ Dịch Vụ Tân Bình – Tòa CHDV 35 Phòng Xây Mới 100% Tại 45 Trần Thái Tông, Dòng Tiền 2,5 Tỷ/Năm ~ 8%
Thị trường bán căn hộ dịch vụ tại TP.HCM đang bước vào giai đoạn chọn lọc mạnh. Nhà đầu tư không còn tìm tài sản nhỏ lẻ, mà ưu tiên tòa quy mô lớn, xây mới, dòng tiền rõ ràng và lợi suất cao.
Hôm nay, Thành Vượng Land giới thiệu cơ hội bán căn hộ dịch vụ Tân Bình cực kỳ hiếm:
✔ 35 phòng – quy mô lớn
✔ Xây mới 100%
✔ Doanh thu khai thác ~2,5 tỷ/năm
✔ Lợi suất khoảng 8%/năm
✔ Vị trí Trần Thái Tông – khu vực khai thác thuê cực mạnh
Đây là một trong những tài sản bán căn hộ dịch vụ có lợi suất cao nhất khu vực Tân Bình hiện tại.
1. Thông Tin Vị Trí – Trần Thái Tông, Phường 15, Tân Bình
📍 Địa chỉ: Hẻm 45 Trần Thái Tông – Phường 15 – Quận Tân Bình – TP.HCM
Đặc điểm khu vực:
-
Đường trước nhà rộng ~3m, sạch sẽ, thông thoáng
-
Cách chợ dân sinh khoảng 100m
-
Khu dân cư đông đúc
-
Gần văn phòng, doanh nghiệp, kho vận, logistics
-
Kết nối nhanh ra sân bay Tân Sơn Nhất
👉 Đây là lý do khu vực này luôn có nhu cầu thuê căn hộ dịch vụ cao và ổn định quanh năm.
Trong phân khúc bán căn hộ dịch vụ Tân Bình, khu Trần Thái Tông được đánh giá là vị trí có thanh khoản tốt, ít trống phòng.
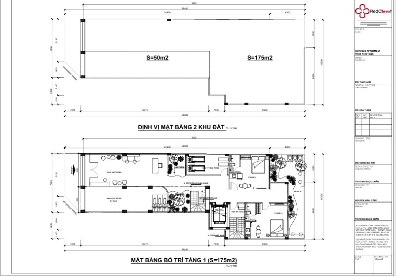
2. Quy Mô & Diện Tích – Tài Sản Lớn Hiếm Có Tại Tân Bình
– Diện tích đất: 235m²
– Kích thước: 7 x 20m, nở hậu 10m
– Thế đất nở hậu – phong thủy tốt
– Xây mới hoàn toàn 100%
Diện tích 235m² tại Tân Bình là quỹ đất lớn. Trong thị trường bán căn hộ dịch vụ, những tài sản có mặt bằng rộng như vậy rất hiếm.
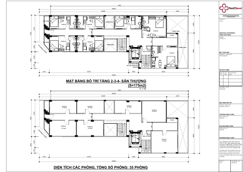
3. Kết Cấu & Công Năng – Tối Ưu Khai Thác Dòng Tiền
– Nhà cao 6 tầng
– Tổng cộng 35 phòng căn hộ dịch vụ
– Nội thất cao cấp, đồng bộ
– Thiết kế hiện đại
– Tối ưu diện tích sử dụng
Với 35 phòng, tòa nhà này thuộc nhóm quy mô lớn trong phân khúc bán căn hộ dịch vụ Tân Bình.
Ưu điểm của quy mô 35 phòng:
-
Giảm rủi ro trống phòng toàn bộ
-
Chia nhỏ dòng tiền
-
Linh hoạt điều chỉnh giá thuê
4. Dòng Tiền & Hiệu Quả Đầu Tư
Doanh thu dự kiến khai thác:
👉 Khoảng 210 triệu đồng/tháng
👉 ~ 2,5 tỷ đồng/năm
👉 Lợi suất khoảng 8%/năm
Trong thị trường bán căn hộ dịch vụ TP.HCM, mức lợi suất 8%/năm được xem là rất tốt, đặc biệt ở khu vực trung tâm như Tân Bình.
So sánh nhanh:
-
Gửi tiết kiệm: 5–6%
-
Nhà phố cho thuê: 3–5%
-
Chung cư cho thuê: 4–6%
-
Căn hộ dịch vụ quy mô lớn: 6–8%
👉 Tòa nhà này đang nằm ở nhóm lợi suất cao của phân khúc.
5. Vì Sao Đây Là Cơ Hội Bán Căn Hộ Dịch Vụ Đáng Đầu Tư?
5.1 Xây mới 100%
Nhà đầu tư không phải:
-
Cải tạo
-
Sửa chữa
-
Thay nội thất
Giảm chi phí ban đầu và tối ưu thời gian khai thác.
5.2 Quy mô 35 phòng – hiếm tại Tân Bình
Phần lớn tài sản bán căn hộ dịch vụ Tân Bình chỉ 10–20 phòng.
35 phòng tạo lợi thế lớn về dòng tiền.
5.3 Khu vực có nhu cầu thuê thực
Phường 15 – Tân Bình:
-
Gần khu công nghiệp
-
Gần sân bay
-
Gần văn phòng
-
Nguồn khách thuê đa dạng
5.4 Tiềm năng tăng giá 2025–2026
Tân Bình là quận:
-
Trung tâm kết nối sân bay
-
Tập trung doanh nghiệp logistics
-
Hạ tầng tiếp tục được đầu tư
Trong bối cảnh quỹ đất nội đô hạn chế, tài sản bán căn hộ dịch vụ quy mô lớn có khả năng tăng giá tốt.
6. Phù Hợp Với Nhà Đầu Tư Nào?
Tòa căn hộ dịch vụ này phù hợp với:
✔ Nhà đầu tư vốn lớn
✔ Muốn sở hữu tài sản dòng tiền mạnh
✔ Ưu tiên lợi suất 7–8%/năm
✔ Tìm tài sản giữ giá dài hạn tại TP.HCM
Nếu bạn đang tìm cơ hội bán căn hộ dịch vụ Tân Bình để đầu tư lâu dài, đây là tài sản đáng cân nhắc.
7. Phân Tích Từ Góc Nhìn Chuyên Gia
Theo kinh nghiệm thực tế tư vấn và giao dịch nhiều tòa bán căn hộ dịch vụ tại TP.HCM, tôi nhận thấy:
-
Quy mô càng lớn, khả năng kiểm soát dòng tiền càng tốt
-
Vị trí gần sân bay luôn giữ giá
-
Tài sản xây mới 100% dễ thanh khoản hơn
Tòa 35 phòng tại Trần Thái Tông hội tụ đủ:
-
Diện tích lớn
-
Vị trí tốt
-
Dòng tiền cao
-
Lợi suất tốt
8. Đơn Vị Tư Vấn & Phân Phối
Nếu bạn đang tìm đơn vị bán căn hộ dịch vụ tốt nhất thành phố Hồ Chí Minh, hãy lựa chọn đơn vị:
-
Am hiểu thị trường TP.HCM
-
Phân tích dòng tiền chi tiết
-
Hỗ trợ kiểm tra pháp lý
-
Đàm phán giá tốt nhất
-
Hỗ trợ vận hành sau mua
Thành Vượng Land
Website: https://thanhvuongland.com.vn/
Nhà tư vấn: Hoàng Hà
Hotline/Zalo: 0965.736.853
Chuyên đầu tư – xây dựng – phân phối – vận hành căn hộ dịch vụ cao cấp tại TP.HCM.
9. Kết Luận
Thị trường bán căn hộ dịch vụ đang dịch chuyển sang phân khúc chuyên nghiệp, quy mô lớn, dòng tiền rõ ràng.
Tòa bán căn hộ dịch vụ Tân Bình 35 phòng tại Trần Thái Tông:
✔ Diện tích lớn 235m²
✔ Nở hậu 10m
✔ Xây mới 100%
✔ 35 phòng
✔ Doanh thu ~2,5 tỷ/năm
✔ Lợi suất ~8%
Đây là cơ hội hiếm trong phân khúc căn hộ dịch vụ khu vực Tân Bình.
Xem Thêm Danh Sách Bán Căn Hộ Dịch Vụ TP.HCM
👉 Xem thêm bán căn hộ dịch vụ thành phố Hồ Chí Minh tại đây:
https://docs.google.com/spreadsheets/d/1M7ncEfZ8m-DN8r0MsRQERo_RAJXZMJvbe2f-Rfq1eaE/edit?gid=1259454040#gid=1259454040
Hoặc nhập thông tin để được tư vấn
Căn hộ gần đây
Bán căn hộ dịch vụ Tân Bình 95m2 x 18 phòng tại Phạm Văn Bạch – Hẻm 6m ô tô – Dòng tiền 1,25 tỷ/năm
Phạm Văn Bạch - Tân Bình
95m2Bán căn hộ dịch vụ Tân Phú 52m2 x 8 phòng tại Lương Thế Vinh – Dòng tiền 600 triệu/năm
Lương Thế Vinh - Tân Phú
52m2Bán căn hộ dịch vụ Gò Vấp 116m2 x 17 phòng tại Bùi Quang Là – Dòng tiền 1,2 tỷ ~ 6,8%/năm
Bùi Quang Là - Gò Vấp
112m2Bán căn hộ dịch vụ Tân Bình 146m2 x 20 phòng tại mặt tiền đường Tân Sơn – Dòng tiền 2,6 tỷ/năm
Tân Sơn - Tân Bình
146m2










